宇都宮市 賃貸店舗・事務所

下岡本町店舗

資料請求・お問い合わせ
物件No.f11058-111376-1
賃貸店舗・事務所
宇都宮市下岡本町2108-17
JR岡本駅 ( 徒歩 5分 )
( 車 2分  400m )
賃料 14.85万円(税込)
(坪単価:0.40万円)
岡本駅西区画整理地内所在のテナント物件です。岡本駅西口まで約徒歩5分。約35坪に対し賃料控えめな物件です。トイレリフォーム予定。

物件を貸したい、土地を活用したい、店舗売買したい等、不動産に関するご相談や出店希望企業様、不動産所有オーナー様もお気軽にお問い合わせ下さい。
宇都宮市の貸店舗、貸事務所探しは
『ピタットハウス宇都宮下栗店』へ!
管理費 -
-
保証金
解約引
-
-
敷金
礼金
3ヶ月
1ヶ月
建物/専有
面積
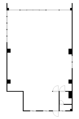
122.14m2
(36.94坪)
土地面積 - 築年月 2002年5月
(平成14年5月)
駐車場 有り無料/4台 所在階 1階 地上階数
地下階数
2階
-
構造 鉄骨造
用途地域 第一種住居地域
現況 空き予定
入居/引渡 期日指定 
引渡年月 2024年03月上旬
契約期間 3年
取引 専任
物件登録日 2023年9月24日
情報更新日 2024年12月14日
■駐車場店舗前4台 
■事業用総合保険要加入■保証会社要加入 初回保証料:月額賃料等合計の100% 毎月引落手数料:440円(税込)更新時:10%/1年
■仲介手数料1カ月(税込)借主負担100% 
■契約更新時:更新事務手数料¥55,000(税込)
■付随の設備、建具無償貸与
■現況優先※入口シャッター鍵無し

下岡本町店舗 周辺地図

下岡本町店舗 のことならお気軽にご相談ください。
テナントショップ宇都宮(ピタットハウス宇都宮下栗店)
TEL:028-688-0451
営業時間:10:00-18:00
定休日 :火・水曜日・祝日 4~8月
栃木県知事(13)第1308号  店舗情報
メールでのお問い合わせ

お電話の場合は
「テナントショップを見ました。物件Noは < f11058-111376-1 > です」と伝えていただくとスムーズにお応えできます。

テナントショップネットワークは物件情報の適正化に努めております。
物件の掲載内容に誤りがある場合はこちらまでご一報ください。
  • 北海道
  • 青森
  • 岩手
  • 秋田
  • 宮城
  • 山形
  • 福島
  • 東京
  • 神奈川
  • 千葉

  • 埼玉
  • 群馬
  • 栃木
  • 茨城
  • 山梨
  • 長野
  • 新潟
  • 石川
  • 富山
  • 福井
  • 愛知
  • 静岡
  • 岐阜
  • 三重
  • 大阪
  • 兵庫
  • 京都
  • 滋賀
  • 奈良
  • 和歌山
  • 広島
  • 岡山
  • 鳥取
  • 島根
  • 山口
  • 香川
  • 愛媛
  • 徳島
  • 高知
  • 福岡
  • 佐賀
  • 長崎
  • 大分
  • 熊本
  • 宮崎
  • 鹿児島
  • 沖縄

[下岡本町店舗]と価格・用途が近い宇都宮市内の物件
貸店舗・事務所
13.20万円
40.57坪
貸店舗・事務所
14.52万円
22.02坪
貸店舗・事務所
13.20万円
23.45坪
貸店舗・事務所
13.97万円
16.94坪
テナントショップネットワークはテナント、貸店舗、貸事務所、貸倉庫等、宇都宮市の事業用テナントが検索できるポータルサイト。
当サイトが厳選した不動産会社の正確なテナント情報(貸店舗、貸事務所、貸倉庫)が自慢です。
テナントショップネットワークは宇都宮市のテナント物件の紹介を通じて貴社のビジネスをサポートいたします。