上越市 賃ビル

仲町4丁目 貸事務所

資料請求・お問い合わせ
物件No.f11139-112729
賃ビル
上越市仲町4-3-19
高田駅 ( 徒歩 2分 )
賃料 7.60万円
(坪単価:0.55万円)
【高田駅から徒歩わずか2分】
24時間利用可 飲食店不可 24時間セキュリティー、個別空調 エレベーター 共用部分に男女別トイレあり
管理費 -
-
保証金
解約引
-
-
敷金
礼金
6ヶ月
-
建物/専有
面積
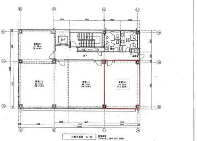
45.70m2
(13.82坪)
土地面積 - 築年月 1997年3月
(平成9年3月)
駐車場 有り有料
(13,200円(税込))
所在階 2階 地上階数
地下階数
4階
-
構造 鉄骨造
用途地域 商業地域
現況 空き
入居/引渡 即時 
契約期間 3年
取引 仲介
物件登録日 2023年10月20日
情報更新日 2024年7月16日
OAフロア、LED照明、ブラインド、冷暖房(専用)、トイレ(共同)、湯沸室(共同)、電気給湯(共同)、機械警備、エレベーター

仲町4丁目 貸事務所 周辺地図

仲町4丁目 貸事務所 のことならお気軽にご相談ください。
テナントショップ上越(ピタットハウス上越店)
TEL:025-544-6015
営業時間:9:00-18:00
定休日 :水曜日、日曜日、祝日
新潟知事免許第(10)3031号  店舗情報
メールでのお問い合わせ

お電話の場合は
「テナントショップを見ました。物件Noは < f11139-112729 > です」と伝えていただくとスムーズにお応えできます。

テナントショップネットワークは物件情報の適正化に努めております。
物件の掲載内容に誤りがある場合はこちらまでご一報ください。
  • 北海道
  • 青森
  • 岩手
  • 秋田
  • 宮城
  • 山形
  • 福島
  • 東京
  • 神奈川
  • 千葉

  • 埼玉
  • 群馬
  • 栃木
  • 茨城
  • 山梨
  • 長野
  • 新潟
  • 石川
  • 富山
  • 福井
  • 愛知
  • 静岡
  • 岐阜
  • 三重
  • 大阪
  • 兵庫
  • 京都
  • 滋賀
  • 奈良
  • 和歌山
  • 広島
  • 岡山
  • 鳥取
  • 島根
  • 山口
  • 香川
  • 愛媛
  • 徳島
  • 高知
  • 福岡
  • 佐賀
  • 長崎
  • 大分
  • 熊本
  • 宮崎
  • 鹿児島
  • 沖縄

[仲町4丁目 貸事務所]と価格・用途が近い上越市内の物件
貸店舗一部
8.58万円
11.75坪
貸店舗・事務所
8.80万円
20.24坪
貸店舗一部
6.60万円
11.76坪
貸店舗・事務所
8.80万円
土地:81.85坪
36.69坪
テナントショップネットワークはテナント、貸店舗、貸事務所、貸倉庫等、上越市の事業用テナントが検索できるポータルサイト。
当サイトが厳選した不動産会社の正確なテナント情報(貸店舗、貸事務所、貸倉庫)が自慢です。
テナントショップネットワークは上越市のテナント物件の紹介を通じて貴社のビジネスをサポートいたします。