前橋市 賃貸店舗一部

あさひビル 2F

資料請求・お問い合わせ
物件No.f11143-125965-M0231
賃貸店舗一部
前橋市朝日町
上毛電気鉄道上毛線 城東駅 ( 徒歩 13分 )
賃料 24.75万円
(坪単価:0.32万円)
ココルンシティまえばしまで徒歩2分のデザイナーズ物件です。礼金・敷金なしです。
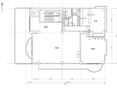
飲食店可、1フロア1テナントです。
前面ガラス張り、天井高2.7m
トイレ2ヶ所あり・専有部分に男女別トイレ、多機能トイレあり
ロードサイド、角地
エアコン2台以上・ビルトインエアコン
空調機あり、排水設備あり
管理費 -
-
保証金
解約引
-
-
敷金
礼金
更新料
-
-
1ヶ月(税別)
建物/専有
面積
255.20m2
(77.19坪)
土地面積 - 築年月 1991年7月
(平成3年7月)
駐車場 有り無料/8台 所在階 2階 地上階数
地下階数
4階
1階
構造 鉄筋コンクリート造(RC)
現況 空き
入居/引渡 相談 
契約期間 3年
取引 仲介
物件登録日 2024年7月8日
情報更新日 2025年12月17日
賃貸保証:加入要 総賃料の100%
火災保険:加入要/あいおいニッセイ同和保険3年間
更新料:新賃料1ヶ月
駐車場:有 無料 空き8台
※リフォーム履歴
■外装:2023年12月 外壁(屋上塔屋部分塗装、コーキング工事)

フリーレントご相談可能
1年未満解約の場合は、違約金あり。

あさひビル 2F 周辺地図

あさひビル 2F のことならお気軽にご相談ください。
テナントショップ前橋(㈱ひとコミ開発)
TEL:027-288-0411
営業時間:10:00-18:00
定休日 :土曜・日曜・祝日
群馬県知事(1)第7897号  店舗情報
メールでのお問い合わせ

お電話の場合は
「テナントショップを見ました。物件Noは < f11143-125965-M0231 > です」と伝えていただくとスムーズにお応えできます。

テナントショップネットワークは物件情報の適正化に努めております。
物件の掲載内容に誤りがある場合はこちらまでご一報ください。
  • 北海道
  • 青森
  • 岩手
  • 秋田
  • 宮城
  • 山形
  • 福島
  • 東京
  • 神奈川
  • 千葉

  • 埼玉
  • 群馬
  • 栃木
  • 茨城
  • 山梨
  • 長野
  • 新潟
  • 石川
  • 富山
  • 福井
  • 愛知
  • 静岡
  • 岐阜
  • 三重
  • 大阪
  • 兵庫
  • 京都
  • 滋賀
  • 奈良
  • 和歌山
  • 広島
  • 岡山
  • 鳥取
  • 島根
  • 山口
  • 香川
  • 愛媛
  • 徳島
  • 高知
  • 福岡
  • 佐賀
  • 長崎
  • 大分
  • 熊本
  • 宮崎
  • 鹿児島
  • 沖縄

[あさひビル 2F]と価格・用途が近い前橋市内の物件
貸店舗・事務所
24.34万円
31.61坪
貸店舗一部
22.00万円
70.18坪
貸事務所
20.98万円
土地:247.3坪
23.83坪
テナントショップネットワークはテナント、貸店舗、貸事務所、貸倉庫等、前橋市の事業用テナントが検索できるポータルサイト。
当サイトが厳選した不動産会社の正確なテナント情報(貸店舗、貸事務所、貸倉庫)が自慢です。
テナントショップネットワークは前橋市のテナント物件の紹介を通じて貴社のビジネスをサポートいたします。