牛久市 賃貸事務所

牛久市 賃貸事務所

資料請求・お問い合わせ
物件No.f11098-128301-01051
賃貸事務所
牛久市中央5
常磐線 牛久駅 ( 徒歩 1分 )
賃料 21.57万円(税込)
(坪単価:0.94万円)
JR常磐線牛久駅徒歩1分の好立地。
駅ロータリー沿いの見通しの良い建物の1階路面店です。
エントランスなど共用部の大規模修繕工事2014年03月済み。
可能業種やご利用用途についてはお問合せください。
牛久市中央5丁目
賃貸事務所
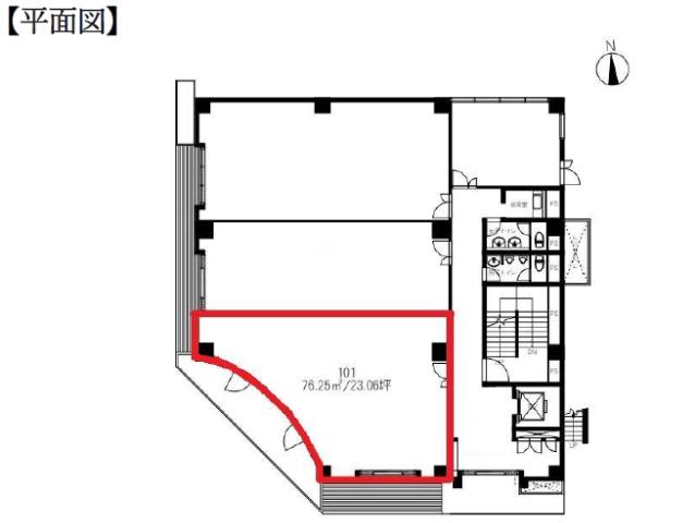
専有面積:約23.06坪 角住戸
共用部分に男女別トイレ・給湯室あり
管理費 -
-
保証金
解約引
-
-
敷金
礼金
更新料
3ヶ月
-
1ヶ月
建物/専有
面積
76.25m2
(23.06坪)
土地面積 - 築年月 1989年12月
(平成元年12月)
駐車場 - 所在階 1階 地上階数
地下階数
6階
1階
構造 鉄骨鉄筋コンクリート造(SRC)
用途地域 商業地域
接道状況 公道 北 
接道状況 公道 東 
現況 空き
入居/引渡 即時 
契約期間 2年
取引 仲介
物件登録日 2024年9月9日
情報更新日 2025年11月20日
■エントランス : 全日 開放
■エレベーター :1 基
■空調:個別空調
■防犯設備:専有部防犯有り
■館銘板作成費用:テナント負担(都度見積・エントランス1箇所)
■看板…袖看板1区画月額5,000円(税別)/1F看板4分割月額5,000円(税別)
■男女別トイレ(各フロア)
■給湯室(各フロア)
■インターネット:MDFまで引込済み
■水光熱費:管理会社より請求
※電気代は電力会社からの請求に応じて専有部使用量をもとに算出
■清掃代:専有部清掃は別途契約になります
※上記諸費用の額・管理形態については、変更させて頂く場合がございます。ご了承ください。
・別途借家人賠償保険加入必須
・仲介手数料:賃料の1ヶ月(別途消費税)
※間取図等現況と異なる場合は現況優先となります

牛久市 賃貸事務所 周辺地図

牛久市 賃貸事務所 のことならお気軽にご相談ください。
テナントショップつくば(㈱アクア)
TEL:029-883-0118
営業時間:9:00-18:00
定休日 :水・日曜日 祝日
茨城県知事(2)7075号  店舗情報
メールでのお問い合わせ

お電話の場合は
「テナントショップを見ました。物件Noは < f11098-128301-01051 > です」と伝えていただくとスムーズにお応えできます。

テナントショップネットワークは物件情報の適正化に努めております。
物件の掲載内容に誤りがある場合はこちらまでご一報ください。
  • 北海道
  • 青森
  • 岩手
  • 秋田
  • 宮城
  • 山形
  • 福島
  • 東京
  • 神奈川
  • 千葉

  • 埼玉
  • 群馬
  • 栃木
  • 茨城
  • 山梨
  • 長野
  • 新潟
  • 石川
  • 富山
  • 福井
  • 愛知
  • 静岡
  • 岐阜
  • 三重
  • 大阪
  • 兵庫
  • 京都
  • 滋賀
  • 奈良
  • 和歌山
  • 広島
  • 岡山
  • 鳥取
  • 島根
  • 山口
  • 香川
  • 愛媛
  • 徳島
  • 高知
  • 福岡
  • 佐賀
  • 長崎
  • 大分
  • 熊本
  • 宮崎
  • 鹿児島
  • 沖縄

テナントショップネットワークはテナント、貸店舗、貸事務所、貸倉庫等、牛久市の事業用テナントが検索できるポータルサイト。
当サイトが厳選した不動産会社の正確なテナント情報(貸店舗、貸事務所、貸倉庫)が自慢です。
テナントショップネットワークは牛久市のテナント物件の紹介を通じて貴社のビジネスをサポートいたします。