金沢市 賃貸店舗・事務所

白菊町K事務所・店舗

資料請求・お問い合わせ
物件No.f11113-128371
賃貸店舗・事務所
金沢市白菊町21番8号
北陸鉄道 白菊町バス停前駅
( 白菊町バス停前 バス停まで徒歩1分 )
賃料 18.00万円
(坪単価:0.29万円)
好立地エリアで事務所・店舗・飲食・美容系等に独立開業を目指す方にオススメ。夜の商売の方も相談可能です。
市街地エリアで金沢三大茶屋街のにし茶屋街も近く、古い歴史の街並みに新しいモダンな事務所・店舗誕生!!大通りに面して交通量も多く視認性良好!看板も効果的です!アピタ金沢近く、街中、国道8号線、金沢駅へのアクセスも良好!!歯科クリニック跡現状スケルトン渡し。自由にレイアウトが出来るのがうれしいですね!!   お気軽にお問い合せ下さい。
事務所・店舗・飲食業種相談可能です!! 飲食の場合は敷金6ケ月・店舗の場合は敷金3ケ月です!!
管理費 -
-
保証金
解約引
-
-
敷金
礼金
3ヶ月
1ヶ月(税込)
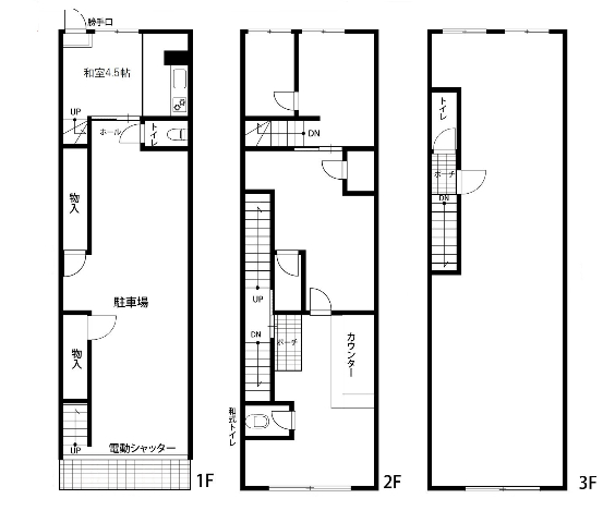
建物/専有
面積
205.20m2
(62.07坪)
土地面積 - 築年月 1986年7月
(昭和61年7月)
駐車場 有/2台
(込み)
所在階 1-3階 地上階数
地下階数
3階
-
構造 鉄骨造
用途地域 商業地域
現況 空き
入居/引渡 即時 
契約期間 2年
取引 代理
物件登録日 2024年9月10日
情報更新日 2025年7月15日
※その他費用
・火災保険加入義務有(借家人賠償責任保険付き)
・仲介手数料(月額賃料の110%)
・町内会費(直接町会へ支払い)
・保証会社との契約必須(初回保証料月額総額100%・1年更新月額10%・口座振替330円)
・消防法・建築基準法・風営法等について事前確認をして頂いた上でお申込みお願いします。

白菊町K事務所・店舗 周辺地図

白菊町K事務所・店舗 のことならお気軽にご相談ください。
テナントショップ トヨミツ
TEL:076-255-2561
営業時間:9:30-18:00
定休日 :水曜日・祝日
石川県知事(2)4174号  店舗情報
メールでのお問い合わせ

お電話の場合は
「テナントショップを見ました。物件Noは < f11113-128371 > です」と伝えていただくとスムーズにお応えできます。

テナントショップネットワークは物件情報の適正化に努めております。
物件の掲載内容に誤りがある場合はこちらまでご一報ください。
  • 北海道
  • 青森
  • 岩手
  • 秋田
  • 宮城
  • 山形
  • 福島
  • 東京
  • 神奈川
  • 千葉

  • 埼玉
  • 群馬
  • 栃木
  • 茨城
  • 山梨
  • 長野
  • 新潟
  • 石川
  • 富山
  • 福井
  • 愛知
  • 静岡
  • 岐阜
  • 三重
  • 大阪
  • 兵庫
  • 京都
  • 滋賀
  • 奈良
  • 和歌山
  • 広島
  • 岡山
  • 鳥取
  • 島根
  • 山口
  • 香川
  • 愛媛
  • 徳島
  • 高知
  • 福岡
  • 佐賀
  • 長崎
  • 大分
  • 熊本
  • 宮崎
  • 鹿児島
  • 沖縄

[白菊町K事務所・店舗]と価格・用途が近い金沢市内の物件
貸事務所
15.26万円
11.56坪
貸店舗・事務所
19.98万円
45.41坪
貸店舗・事務所
17.89万円
25.02坪
貸店舗・事務所
17.36万円
24.29坪
貸店舗・事務所
17.16万円
22.28坪
テナントショップネットワークはテナント、貸店舗、貸事務所、貸倉庫等、金沢市の事業用テナントが検索できるポータルサイト。
当サイトが厳選した不動産会社の正確なテナント情報(貸店舗、貸事務所、貸倉庫)が自慢です。
テナントショップネットワークは金沢市のテナント物件の紹介を通じて貴社のビジネスをサポートいたします。