金沢市 賃ビル

香林坊ファーストビル 403号室

資料請求・お問い合わせ
物件No.f11113-134135r
賃ビル
金沢市片町1-1-29
金沢駅 ( 徒歩 32分 )
賃料 10.65万円(税込)
(坪単価:0.99万円)
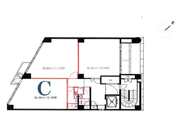
事務所・美容系サロン・教室等にオススメです。共益費は賃料に含み・礼金なしは嬉しいですね。注意、図面の3FのBの区画になります。
香林坊交差点から8階建茶色の素敵な建物が良く見え、全面リニューアル済!事務所・店舗にオススメ物件!香林坊バス停まで徒歩4分。街中で日本三名園兼六公園、金沢21世紀美術館、金沢市役所など第一級エリア!!袖看板は月々2,000円(消費税別途)
管理費 -
-
保証金
解約引
-
-
敷金
礼金
-
-
建物/専有
面積
35.58m2
(10.76坪)
土地面積 - 築年月 1986年9月
(昭和61年9月)
駐車場 所在階 4階 地上階数
地下階数
8階
1階
用途地域 商業地域
現況 空き
入居/引渡 相談 
取引 仲介
物件登録日 2024年12月26日
情報更新日 2024年12月26日
全面リニューアル済!事務所・店舗にオススメ物件誕生!!香林坊バス停まで徒歩4分。街中で日本三名園兼六公園、金沢21世紀美術館、金沢市役所、本多の森公園など金沢観光スポット第一級エリア袖看板月/2,000円(消費税別途)
初回保証料:月額の100%  1年更新月額10%          口座振替時330円税込

香林坊ファーストビル 403号室 周辺地図

香林坊ファーストビル 403号室 のことならお気軽にご相談ください。
テナントショップ トヨミツ
TEL:076-255-2561
営業時間:9:30-18:00
定休日 :水曜日・祝日
石川県知事(2)4174号  店舗情報
メールでのお問い合わせ

お電話の場合は
「テナントショップを見ました。物件Noは < f11113-134135r > です」と伝えていただくとスムーズにお応えできます。

テナントショップネットワークは物件情報の適正化に努めております。
物件の掲載内容に誤りがある場合はこちらまでご一報ください。
  • 北海道
  • 青森
  • 岩手
  • 秋田
  • 宮城
  • 山形
  • 福島
  • 東京
  • 神奈川
  • 千葉

  • 埼玉
  • 群馬
  • 栃木
  • 茨城
  • 山梨
  • 長野
  • 新潟
  • 石川
  • 富山
  • 福井
  • 愛知
  • 静岡
  • 岐阜
  • 三重
  • 大阪
  • 兵庫
  • 京都
  • 滋賀
  • 奈良
  • 和歌山
  • 広島
  • 岡山
  • 鳥取
  • 島根
  • 山口
  • 香川
  • 愛媛
  • 徳島
  • 高知
  • 福岡
  • 佐賀
  • 長崎
  • 大分
  • 熊本
  • 宮崎
  • 鹿児島
  • 沖縄

[香林坊ファーストビル 403号室]と価格・用途が近い金沢市内の物件
貸店舗・事務所
11.00万円 1R
土地:65.07坪
21.28坪
貸店舗・事務所
11.00万円 1R
土地:65.07坪
21.28坪
貸店舗・事務所
8.96万円
3.08坪
貸店舗・事務所
12.39万円
25.02坪
テナントショップネットワークはテナント、貸店舗、貸事務所、貸倉庫等、金沢市の事業用テナントが検索できるポータルサイト。
当サイトが厳選した不動産会社の正確なテナント情報(貸店舗、貸事務所、貸倉庫)が自慢です。
テナントショップネットワークは金沢市のテナント物件の紹介を通じて貴社のビジネスをサポートいたします。