金沢市 賃貸店舗一部

CoCoTToKANAZAWA(ココットカナザワ) 103号室

資料請求・お問い合わせ
物件No.f11113-134206
賃貸店舗一部
金沢市竪町45-2
北陸鉄道石川線 野町駅 ( 徒歩 17分 )
賃料 29.00万円
(坪単価:1.10万円)
竪町ストリートは北陸随一の商業エリアとして若者を中心に地元密着型で親しまれアパレル物販・飲食店・ホテル等が多く近年観光客・年齢層も幅広く増えてきている好立地。セレクトショップ・美容系・教室等にオススメです。
観光地兼六園・21世紀美術館に近く立地も良くショッピングを楽しむ街並みは嬉しいですね!水道代:月額100円/坪(税別)・電気料金は子メーターです。
管理費 -
-
保証金
解約引
-
-
敷金
礼金
-
-
建物/専有
面積
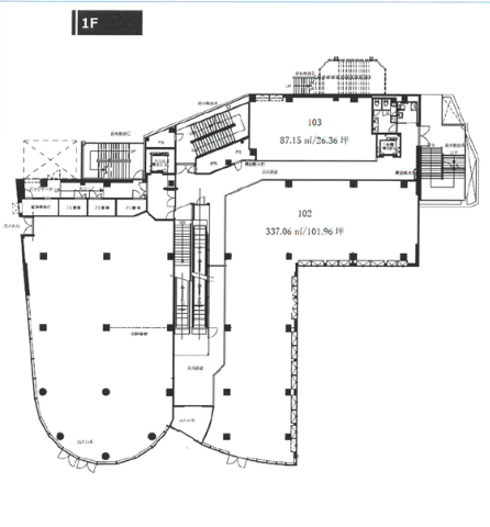
87.15m2
(26.36坪)
土地面積 - 築年月 1979年4月
(昭和54年4月)
駐車場 所在階 1階 地上階数
地下階数
5階
1階
構造 鉄骨造
現況 使用中
入居/引渡 相談 
取引 仲介
物件登録日 2024年12月28日
情報更新日 2024年12月28日
初回保証料:月額の100%  1年更新月額10%          口座振替時330円税込

CoCoTToKANAZAWA(ココットカナザワ) 103号室 周辺地図

CoCoTToKANAZAWA(ココットカナザワ) 103号室 のことならお気軽にご相談ください。
テナントショップ トヨミツ
TEL:076-255-2561
営業時間:9:30-18:00
定休日 :水曜日・祝日
石川県知事(2)4174号  店舗情報
メールでのお問い合わせ

お電話の場合は
「テナントショップを見ました。物件Noは < f11113-134206 > です」と伝えていただくとスムーズにお応えできます。

テナントショップネットワークは物件情報の適正化に努めております。
物件の掲載内容に誤りがある場合はこちらまでご一報ください。
  • 北海道
  • 青森
  • 岩手
  • 秋田
  • 宮城
  • 山形
  • 福島
  • 東京
  • 神奈川
  • 千葉

  • 埼玉
  • 群馬
  • 栃木
  • 茨城
  • 山梨
  • 長野
  • 新潟
  • 石川
  • 富山
  • 福井
  • 愛知
  • 静岡
  • 岐阜
  • 三重
  • 大阪
  • 兵庫
  • 京都
  • 滋賀
  • 奈良
  • 和歌山
  • 広島
  • 岡山
  • 鳥取
  • 島根
  • 山口
  • 香川
  • 愛媛
  • 徳島
  • 高知
  • 福岡
  • 佐賀
  • 長崎
  • 大分
  • 熊本
  • 宮崎
  • 鹿児島
  • 沖縄

[CoCoTToKANAZAWA(ココットカナザワ) 103号室]と価格・用途が近い金沢市内の物件
貸店舗・事務所
23.85万円
27.1坪
貸事務所
25.39万円
20.97坪
テナントショップネットワークはテナント、貸店舗、貸事務所、貸倉庫等、金沢市の事業用テナントが検索できるポータルサイト。
当サイトが厳選した不動産会社の正確なテナント情報(貸店舗、貸事務所、貸倉庫)が自慢です。
テナントショップネットワークは金沢市のテナント物件の紹介を通じて貴社のビジネスをサポートいたします。