河北郡内灘町 賃貸店舗・事務所

向陽台1丁目店舗

資料請求・お問い合わせ
物件No.f11113-146376
賃貸店舗・事務所
河北郡内灘町向陽台1
北陸鉄道 内灘駅 ( 徒歩 8分 )
賃料 37.00万円(税込)
(坪単価:0.51万円)
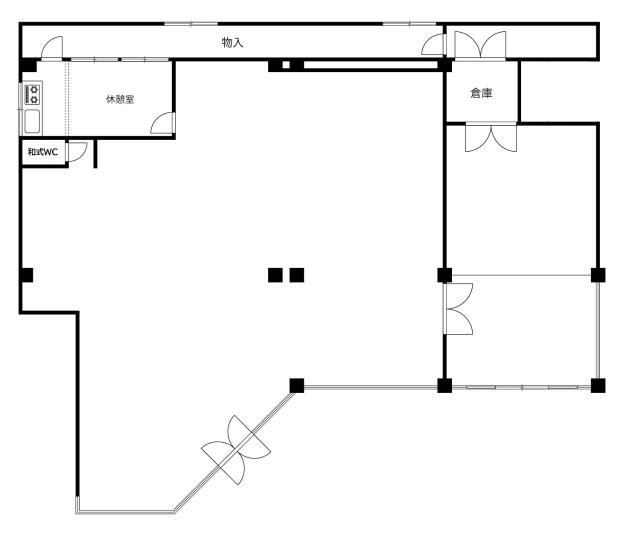
内灘町役場や医科大前への大通り沿いにある1F店舗。視認性も良く、目立つ立地。71.9坪とゆったりとした広さ。業種などまずはご相談ください。
・駐車場を止めやすいように工事予定。(花壇撤去予定)
・電気と水道の子メーター設置予定。
※時期未定
管理費 -
-
保証金
解約引
-
-
敷金
礼金
6ヶ月
1ヶ月(税込)
建物/専有
面積
237.77m2
(71.92坪)
土地面積 - 築年月 1981年10月
(昭和56年10月)
駐車場 空有/4台
(込み)
所在階 1階 地上階数
地下階数
2階
-
構造 鉄骨造
用途地域 準住居地域
現況 使用中
入居/引渡 空予定 
引渡年月 2025年10月上旬
契約期間 2年
取引 代理
物件登録日 2025年6月30日
情報更新日 2025年6月30日
・事務所や物販、塾等の場合は、敷金3ヶ月。
・火災保険加入義務有(借家人賠償付)
・町内会費(直接町会へ支払い)
・仲介手数料月額賃料1ヵ月分。
・ゴミは賃借人様にて直接業者回収。
・保証会社との契約必須(初回保証料月額総額100%・1年更新月額10%・口座振替330円)

向陽台1丁目店舗 周辺地図

向陽台1丁目店舗 のことならお気軽にご相談ください。
テナントショップ金沢
TEL:076-204-6051
営業時間:10:00-18:00
定休日 :水曜・日曜・祝日
石川県知事(1)4564号  店舗情報
メールでのお問い合わせ

お電話の場合は
「テナントショップを見ました。物件Noは < f11113-146376 > です」と伝えていただくとスムーズにお応えできます。

テナントショップネットワークは物件情報の適正化に努めております。
物件の掲載内容に誤りがある場合はこちらまでご一報ください。
  • 北海道
  • 青森
  • 岩手
  • 秋田
  • 宮城
  • 山形
  • 福島
  • 東京
  • 神奈川
  • 千葉

  • 埼玉
  • 群馬
  • 栃木
  • 茨城
  • 山梨
  • 長野
  • 新潟
  • 石川
  • 富山
  • 福井
  • 愛知
  • 静岡
  • 岐阜
  • 三重
  • 大阪
  • 兵庫
  • 京都
  • 滋賀
  • 奈良
  • 和歌山
  • 広島
  • 岡山
  • 鳥取
  • 島根
  • 山口
  • 香川
  • 愛媛
  • 徳島
  • 高知
  • 福岡
  • 佐賀
  • 長崎
  • 大分
  • 熊本
  • 宮崎
  • 鹿児島
  • 沖縄

テナントショップネットワークはテナント、貸店舗、貸事務所、貸倉庫等、河北郡内灘町の事業用テナントが検索できるポータルサイト。
当サイトが厳選した不動産会社の正確なテナント情報(貸店舗、貸事務所、貸倉庫)が自慢です。
テナントショップネットワークは河北郡内灘町のテナント物件の紹介を通じて貴社のビジネスをサポートいたします。