金沢市 賃貸店舗・事務所

金沢市 賃貸店舗・事務所

資料請求・お問い合わせ
物件No.f11113-153620
賃貸店舗・事務所
金沢市中橋町10番1号
JR金沢駅西口駅 ( 徒歩 6分 )
( 中橋バス停前 バス停まで徒歩1分 )
賃料 23.85万円
(坪単価:0.88万円)

JA金沢駅西徒歩7分、ホテル・商業オフィスビルに囲まれた注目の駅西エリアで店舗ビル誕生♪♪建物の個性を主張する下記西エリアにふさわしいシックな外観、金沢港線の大通りに面して看板効果あり♪♪1階から4階エレベーター付で地元密着でお考えの方にオススメ物件♪♪ JA金沢駅西口に近く金沢市内・国道8号線・高速西インターアクセス良好♪♪事務所・軽飲食・店舗・教室・美容系等などに最適です♪♪ スケルトン現状渡しです♪♪ ぜひご内見お待ちしております♪♪
管理費
共益費
-
11,000円
保証金
解約引
-
-
敷金
礼金
3ヶ月
1ヶ月(税込)
建物/専有
面積
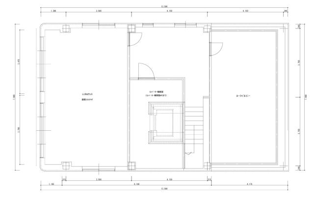
89.60m2
(27.1坪)
土地面積 - 築年月 1997年9月
(平成9年9月)
駐車場 有/1台
(11,000円(税込))
所在階 4階 地上階数
地下階数
5階
-
構造 鉄骨造
用途地域 商業地域
現況 空き
入居/引渡 即時 
契約期間 2年
取引 仲介
物件登録日 2025年10月14日
情報更新日 2025年10月14日

金沢市 賃貸店舗・事務所 周辺地図

金沢市 賃貸店舗・事務所 のことならお気軽にご相談ください。
テナントショップ トヨミツ
TEL:076-255-2561
営業時間:9:30-18:00
定休日 :水曜日・祝日
石川県知事(2)4174号  店舗情報
メールでのお問い合わせ

お電話の場合は
「テナントショップを見ました。物件Noは < f11113-153620 > です」と伝えていただくとスムーズにお応えできます。

テナントショップネットワークは物件情報の適正化に努めております。
物件の掲載内容に誤りがある場合はこちらまでご一報ください。
  • 北海道
  • 青森
  • 岩手
  • 秋田
  • 宮城
  • 山形
  • 福島
  • 東京
  • 神奈川
  • 千葉

  • 埼玉
  • 群馬
  • 栃木
  • 茨城
  • 山梨
  • 長野
  • 新潟
  • 石川
  • 富山
  • 福井
  • 愛知
  • 静岡
  • 岐阜
  • 三重
  • 大阪
  • 兵庫
  • 京都
  • 滋賀
  • 奈良
  • 和歌山
  • 広島
  • 岡山
  • 鳥取
  • 島根
  • 山口
  • 香川
  • 愛媛
  • 徳島
  • 高知
  • 福岡
  • 佐賀
  • 長崎
  • 大分
  • 熊本
  • 宮崎
  • 鹿児島
  • 沖縄

[金沢市 賃貸店舗・事務所]と価格・用途が近い金沢市内の物件
貸事務所
19.25万円 1R
土地:165.77坪
26.34坪
貸事務所
25.39万円
20.97坪
貸店舗・事務所
25.00万円
18.44坪
貸事務所
20.23万円
22.99坪
テナントショップネットワークはテナント、貸店舗、貸事務所、貸倉庫等、金沢市の事業用テナントが検索できるポータルサイト。
当サイトが厳選した不動産会社の正確なテナント情報(貸店舗、貸事務所、貸倉庫)が自慢です。
テナントショップネットワークは金沢市のテナント物件の紹介を通じて貴社のビジネスをサポートいたします。