高崎市 賃貸倉庫

福島町貸倉庫

資料請求・お問い合わせ
物件No.f11163-153740-T0423
賃貸倉庫
高崎市福島町
JR上越線 井野駅 ( 徒歩 52分 )
賃料 28.60万円
(坪単価:0.23万円)
県道10号 前橋安中富岡線の貸倉庫物件です。
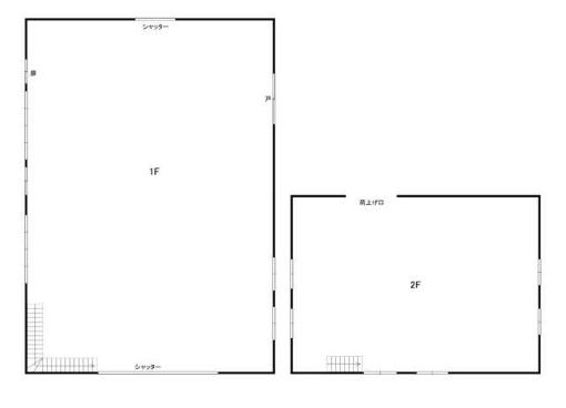
内壁大変綺麗になっています。倉庫内は整形で使いやすく、シャッター面の大きさも高さ約3.8m、幅約6.6mあるため、大型の車両でも出し入れが可能です。フロアは一部ロフト構造となっておりフォークリフトで荷上げが可能です。前面道路は県道となっているため、二車線ながら道幅は広く、敷地への車両搬入が容易です。
トイレ、電動シャッター、荷積みスペース、大型トラック搬入可
管理費 -
-
保証金
解約引
-
-
敷金
礼金
更新料
2ヶ月
1ヶ月(税別)
1ヶ月(税別)
建物/専有
面積
403.25m2
(121.98坪)
土地面積 - 築年月 1982年2月
(昭和57年2月)
駐車場 有り無料 所在階 1-2階 地上階数
地下階数
2階
-
構造 鉄骨造
用途地域
現況 空き
入居/引渡 即時 
契約期間 3年
取引 仲介
物件登録日 2025年10月16日
情報更新日 2025年10月23日
賃貸保証:加入要 月額総賃料100%
火災保険:加入要/ テナント総合保険
水道料:1,000円/月
更新料:新賃料1ヶ月
駐車場:有 無料 空き5台
建物前面北側部分を駐車場として使えます。
飲食店不可、土日・祝日利用可、天井高2.5m以上 整形無柱空間

福島町貸倉庫 周辺地図

福島町貸倉庫 のことならお気軽にご相談ください。
テナントショップ高崎(㈱ひとコミ開発)
TEL:027-386-5776
営業時間:10:00-18:00
定休日 :土曜・日曜・祝日
群馬県知事(1)第7897号  店舗情報
メールでのお問い合わせ

お電話の場合は
「テナントショップを見ました。物件Noは < f11163-153740-T0423 > です」と伝えていただくとスムーズにお応えできます。

テナントショップネットワークは物件情報の適正化に努めております。
物件の掲載内容に誤りがある場合はこちらまでご一報ください。
  • 北海道
  • 青森
  • 岩手
  • 秋田
  • 宮城
  • 山形
  • 福島
  • 東京
  • 神奈川
  • 千葉

  • 埼玉
  • 群馬
  • 栃木
  • 茨城
  • 山梨
  • 長野
  • 新潟
  • 石川
  • 富山
  • 福井
  • 愛知
  • 静岡
  • 岐阜
  • 三重
  • 大阪
  • 兵庫
  • 京都
  • 滋賀
  • 奈良
  • 和歌山
  • 広島
  • 岡山
  • 鳥取
  • 島根
  • 山口
  • 香川
  • 愛媛
  • 徳島
  • 高知
  • 福岡
  • 佐賀
  • 長崎
  • 大分
  • 熊本
  • 宮崎
  • 鹿児島
  • 沖縄

[福島町貸倉庫]と価格・用途が近い高崎市内の物件
貸店舗一部
27.50万円
土地:215.63坪
97.65坪
貸店舗・事務所
26.40万円
44.1坪
貸店舗・事務所
27.23万円
土地:100.42坪
22.79坪
貸倉庫
33.00万円
105.85坪
貸店舗一部
29.64万円
33.68坪
テナントショップネットワークはテナント、貸店舗、貸事務所、貸倉庫等、高崎市の事業用テナントが検索できるポータルサイト。
当サイトが厳選した不動産会社の正確なテナント情報(貸店舗、貸事務所、貸倉庫)が自慢です。
テナントショップネットワークは高崎市のテナント物件の紹介を通じて貴社のビジネスをサポートいたします。