前橋市 賃貸店舗・事務所

元総社町貸店舗

資料請求・お問い合わせ
物件No.f11143-153774-M0385
賃貸店舗・事務所
前橋市元総社町
JR両毛線 新前橋駅 ( 徒歩 18分 )
賃料 25.00万円
(坪単価:0.96万円)
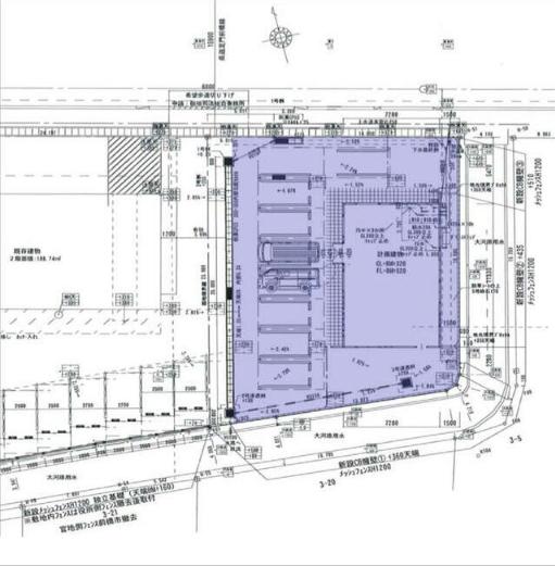
県道127号線沿いにある新築の貸店舗・事務所です。


飲食店可、スケルトン、天井高2.5m以上
プロパンガス、エアコン
管理費 -
-
保証金
解約引
-
-
敷金
礼金
更新料
3ヶ月
1ヶ月(税別)
1ヶ月(税別)
建物/専有
面積
86.12m2
(26.05坪)
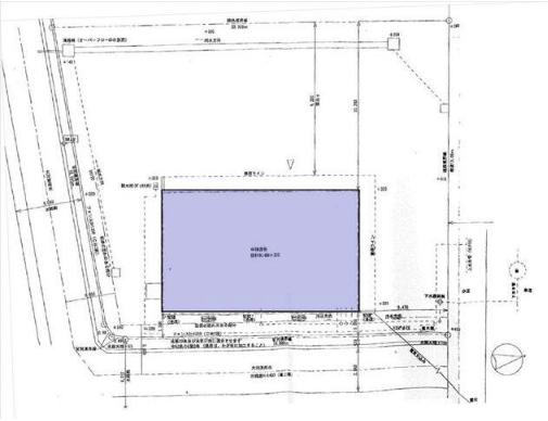
土地面積 424.69m2
(128.46坪)
築年月 2026年2月
(令和8年2月)
駐車場 有り無料/8台 所在階 1階 地上階数
地下階数
1階
-
構造 木造
用途地域 近隣商業地域
接道状況 公道 北 16.00m 
接面19.00m
現況 未完成
入居/引渡 建設中 
引渡年月 2026年03月上旬
契約期間 3年
取引 仲介
物件登録日 2025年10月16日
情報更新日 2025年10月23日
賃貸保証:加入要 月額総賃料100%
火災保険:加入要
更新料:新賃料1ヶ月
駐車場:有 無料 空き8台 台数要確認
【室内仕上げ】
床:コンクリート土間、壁:石膏ボード、天井:石膏ボード トイレは設置しない状態での引渡しになります。
【高さ】
室内天井高さ3.0m、軒高さ3.6m、最高高さ4.7m

元総社町貸店舗 周辺地図

元総社町貸店舗 のことならお気軽にご相談ください。
テナントショップ前橋(㈱ひとコミ開発)
TEL:027-288-0411
営業時間:10:00-18:00
定休日 :土曜・日曜・祝日
群馬県知事(1)第7897号  店舗情報
メールでのお問い合わせ

お電話の場合は
「テナントショップを見ました。物件Noは < f11143-153774-M0385 > です」と伝えていただくとスムーズにお応えできます。

テナントショップネットワークは物件情報の適正化に努めております。
物件の掲載内容に誤りがある場合はこちらまでご一報ください。
  • 北海道
  • 青森
  • 岩手
  • 秋田
  • 宮城
  • 山形
  • 福島
  • 東京
  • 神奈川
  • 千葉

  • 埼玉
  • 群馬
  • 栃木
  • 茨城
  • 山梨
  • 長野
  • 新潟
  • 石川
  • 富山
  • 福井
  • 愛知
  • 静岡
  • 岐阜
  • 三重
  • 大阪
  • 兵庫
  • 京都
  • 滋賀
  • 奈良
  • 和歌山
  • 広島
  • 岡山
  • 鳥取
  • 島根
  • 山口
  • 香川
  • 愛媛
  • 徳島
  • 高知
  • 福岡
  • 佐賀
  • 長崎
  • 大分
  • 熊本
  • 宮崎
  • 鹿児島
  • 沖縄

[元総社町貸店舗]と価格・用途が近い前橋市内の物件
貸店舗一部
24.75万円
70.53坪
貸店舗・事務所
27.50万円
土地:103.26坪
34.86坪
貸店舗・事務所
22.00万円
39.45坪
テナントショップネットワークはテナント、貸店舗、貸事務所、貸倉庫等、前橋市の事業用テナントが検索できるポータルサイト。
当サイトが厳選した不動産会社の正確なテナント情報(貸店舗、貸事務所、貸倉庫)が自慢です。
テナントショップネットワークは前橋市のテナント物件の紹介を通じて貴社のビジネスをサポートいたします。