前橋市 賃貸店舗・事務所

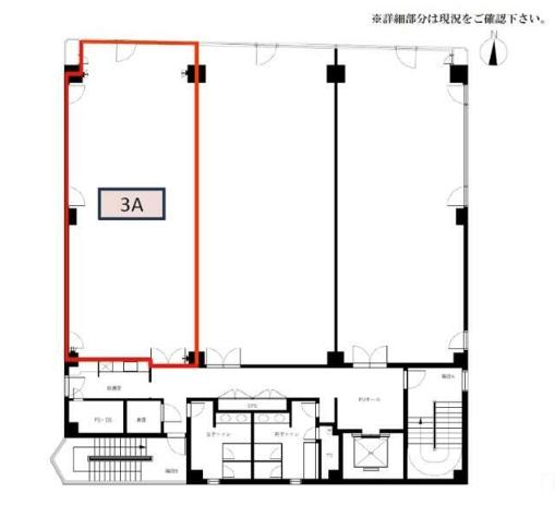
南町 貸店舗・事務所 3A

資料請求・お問い合わせ
物件No.f11143-154211-M0392
賃貸店舗・事務所
前橋市南町
JR両毛線 前橋駅 ( 徒歩 5分 )
賃料 24.34万円
(坪単価:0.77万円)
前橋駅から徒歩5分の場所にある5階建ビルの3階一部分です。
駅近のオフィスをお考えの方におすすめです。
1Fに共用部あり。共用部の清掃は貸主側で行います。
ビルの使用および入退出は24時間可能です。
エントランス開閉時間 全日8時から21時

エレベーターあり、新耐震基準
※正式な賃料は、24.3397万円です。
管理費 -
-
保証金
解約引
-
-
敷金
礼金
3ヶ月
-
建物/専有
面積
104.51m2
(31.61坪)
土地面積 - 築年月 1995年11月
(平成7年11月)
駐車場 有り有料
(6600)
所在階 3階 地上階数
地下階数
5階
1階
構造 鉄筋コンクリート造(RC)
現況 使用中
入居/引渡 期日指定 
引渡年月 2026年01月上旬
契約期間 2年
取引 仲介
物件登録日 2025年10月22日
情報更新日 2025年11月14日
賃貸保証:加入要相談
火災保険:加入要
駐車場:有 6,600円/月
【駐車場サイズ】最大長5,000㎜ 最大幅1,800㎜ 最大高1,550㎜ 重量1,700㎏ タイヤ外幅1,760㎜
駐車場の詳細は確認要 駐車場敷金1ヶ月
更新料:なし
鍵交換費用:30,000円(税別)
袖看板使用料:25,000円(税別)

南町 貸店舗・事務所 3A 周辺地図

南町 貸店舗・事務所 3A のことならお気軽にご相談ください。
テナントショップ前橋(㈱ひとコミ開発)
TEL:027-288-0411
営業時間:10:00-18:00
定休日 :土曜・日曜・祝日
群馬県知事(1)第7897号  店舗情報
メールでのお問い合わせ

お電話の場合は
「テナントショップを見ました。物件Noは < f11143-154211-M0392 > です」と伝えていただくとスムーズにお応えできます。

テナントショップネットワークは物件情報の適正化に努めております。
物件の掲載内容に誤りがある場合はこちらまでご一報ください。
  • 北海道
  • 青森
  • 岩手
  • 秋田
  • 宮城
  • 山形
  • 福島
  • 東京
  • 神奈川
  • 千葉

  • 埼玉
  • 群馬
  • 栃木
  • 茨城
  • 山梨
  • 長野
  • 新潟
  • 石川
  • 富山
  • 福井
  • 愛知
  • 静岡
  • 岐阜
  • 三重
  • 大阪
  • 兵庫
  • 京都
  • 滋賀
  • 奈良
  • 和歌山
  • 広島
  • 岡山
  • 鳥取
  • 島根
  • 山口
  • 香川
  • 愛媛
  • 徳島
  • 高知
  • 福岡
  • 佐賀
  • 長崎
  • 大分
  • 熊本
  • 宮崎
  • 鹿児島
  • 沖縄

[南町 貸店舗・事務所 3A]と価格・用途が近い前橋市内の物件
貸店舗一部
22.00万円
60.35坪
貸事務所
21.69万円
39.44坪
貸事務所
19.49万円
土地:247.3坪
22.14坪
貸店舗一部
22.00万円
70.18坪
テナントショップネットワークはテナント、貸店舗、貸事務所、貸倉庫等、前橋市の事業用テナントが検索できるポータルサイト。
当サイトが厳選した不動産会社の正確なテナント情報(貸店舗、貸事務所、貸倉庫)が自慢です。
テナントショップネットワークは前橋市のテナント物件の紹介を通じて貴社のビジネスをサポートいたします。