札幌市北区 賃貸店舗一部

札幌市北区 賃貸店舗一部

資料請求・お問い合わせ
物件No.f11056-155244
賃貸店舗一部
札幌市北区北8条西4
JR千歳線:札幌駅 ( 徒歩 6分 )
賃料 65.00万円(税別)
(坪単価:1.71万円)
2027年3月完成予定・JR札幌駅徒歩6分、ホテル内1階テナント。飲食店での出店。

札幌のテナント情報
管理費 -
-
保証金
解約引
5ヶ月
-
敷金
礼金
-
1ヶ月(税別)
建物/専有
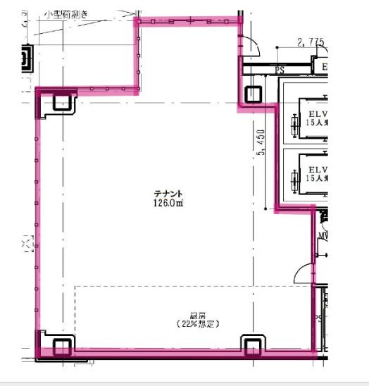
面積
125.98m2
(38.1坪)
土地面積 - 築年月 2027年3月
(令和9年3月)
駐車場 - 所在階 1階 地上階数
地下階数
14階
-
構造 鉄骨造
現況 建築中
入居/引渡 期日指定 
引渡年月 2027年03月
契約期間 5年(定期借家)
取引 仲介
物件登録日 2025年11月7日
情報更新日 2025年11月7日
スケルトン渡し/角部屋/1フロア/24時間利用可/土日・祝日利用可/トイレ/多機能トイレ/都市ガス/動力あり/インターネット対応/火災警報器(報知機)/エレベーター2基以上/敷地内AED有/看板取付スペースあり/外装改装相談/換気口あり/排水設備あり
※建築・設計中のため、開業時期、図面・面積等は変更になる場合がございます。
札幌市北区 賃貸店舗一部 のことならお気軽にご相談ください。
テナントショップ札幌(ゆいコーポレーション)
TEL:011-376-1319
営業時間:10:00-18:00
定休日 :土・日・祝日
北海道 石狩(2)第8293号  店舗情報
メールでのお問い合わせ

お電話の場合は
「テナントショップを見ました。物件Noは < f11056-155244 > です」と伝えていただくとスムーズにお応えできます。

テナントショップネットワークは物件情報の適正化に努めております。
物件の掲載内容に誤りがある場合はこちらまでご一報ください。
  • 北海道
  • 青森
  • 岩手
  • 秋田
  • 宮城
  • 山形
  • 福島
  • 東京
  • 神奈川
  • 千葉

  • 埼玉
  • 群馬
  • 栃木
  • 茨城
  • 山梨
  • 長野
  • 新潟
  • 石川
  • 富山
  • 福井
  • 愛知
  • 静岡
  • 岐阜
  • 三重
  • 大阪
  • 兵庫
  • 京都
  • 滋賀
  • 奈良
  • 和歌山
  • 広島
  • 岡山
  • 鳥取
  • 島根
  • 山口
  • 香川
  • 愛媛
  • 徳島
  • 高知
  • 福岡
  • 佐賀
  • 長崎
  • 大分
  • 熊本
  • 宮崎
  • 鹿児島
  • 沖縄

[札幌市北区 賃貸店舗一部]と価格・用途が近い札幌市北区内の物件
貸事務所
75.00万円
85.15坪
貸店舗・事務所
62.00万円
61.99坪
貸店舗一部
57.10万円
142.74坪
テナントショップネットワークはテナント、貸店舗、貸事務所、貸倉庫等、札幌市北区の事業用テナントが検索できるポータルサイト。
当サイトが厳選した不動産会社の正確なテナント情報(貸店舗、貸事務所、貸倉庫)が自慢です。
テナントショップネットワークは札幌市北区のテナント物件の紹介を通じて貴社のビジネスをサポートいたします。