足立区 賃貸店舗・事務所

シャイン竹ノ塚

資料請求・お問い合わせ
物件No.f11107-155329
賃貸店舗・事務所
足立区竹ノ塚4-4-2
竹ノ塚駅 ( 徒歩 10分 )
賃料 24.20万円(税込)
(坪単価:0.78万円)
竹ノ塚駅からメイン通り沿いの立地。
1階は、まいばすけっと営業中です。

・2階への専用階段あり
・軽飲食等、ご相談可能
・現況渡し、バーの居抜き
・ご内見可能

2階ですが、坪単価は安めです。
ご内見可能になりますので、お気軽にお問合せ下さい。
川口市・さいたま市全域・蕨市・戸田市・草加市・越谷市・和光市・朝霞市・志木市・川越市などの埼玉県・東京都全域までの店舗・事務所・倉庫などの事業用賃貸など経験豊富なスタッフがサポートさせて頂きます。

テナント探しはお気軽に「株式会社アッド」まで、お問合せ下さい。
管理費 22,000円(税別)
-
保証金
解約引
-
-
敷金
礼金
更新料
3ヶ月
-
1ヶ月(税別)
建物/専有
面積
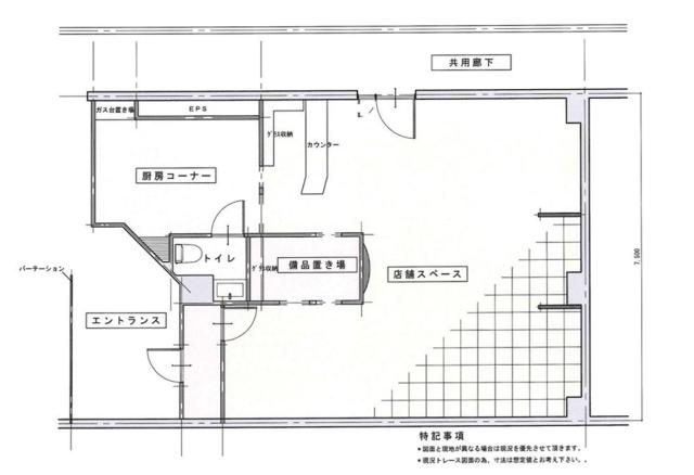
102.72m2
(31.07坪)
土地面積 - 築年月 1989年8月
(平成元年8月)
駐車場 - 所在階 2階 地上階数
地下階数
5階
-
構造 鉄筋コンクリート造(RC)
現況 空き
入居/引渡 相談 
取引 仲介
物件登録日 2025年11月8日
情報更新日 2025年11月10日
・駐輪場あり、月額500円税別

シャイン竹ノ塚 周辺地図

シャイン竹ノ塚 のことならお気軽にご相談ください。
株式会社アッド
TEL:048-290-8951
営業時間:10:00-18:00
定休日 :日曜日/GW・夏季休暇・年末年始
埼玉県知事(2)第23822号  店舗情報
メールでのお問い合わせ

お電話の場合は
「テナントショップを見ました。物件Noは < f11107-155329 > です」と伝えていただくとスムーズにお応えできます。

テナントショップネットワークは物件情報の適正化に努めております。
物件の掲載内容に誤りがある場合はこちらまでご一報ください。
  • 北海道
  • 青森
  • 岩手
  • 秋田
  • 宮城
  • 山形
  • 福島
  • 東京
  • 神奈川
  • 千葉

  • 埼玉
  • 群馬
  • 栃木
  • 茨城
  • 山梨
  • 長野
  • 新潟
  • 石川
  • 富山
  • 福井
  • 愛知
  • 静岡
  • 岐阜
  • 三重
  • 大阪
  • 兵庫
  • 京都
  • 滋賀
  • 奈良
  • 和歌山
  • 広島
  • 岡山
  • 鳥取
  • 島根
  • 山口
  • 香川
  • 愛媛
  • 徳島
  • 高知
  • 福岡
  • 佐賀
  • 長崎
  • 大分
  • 熊本
  • 宮崎
  • 鹿児島
  • 沖縄

[シャイン竹ノ塚]と価格・用途が近い足立区内の物件
貸店舗・事務所
19.80万円
16.29坪
貸店舗・事務所
24.00万円
11.44坪
貸店舗・事務所
27.50万円
19.32坪
貸店舗・事務所
27.50万円
30.85坪
事務所付き倉庫
27.50万円
37.08坪
テナントショップネットワークはテナント、貸店舗、貸事務所、貸倉庫等、足立区の事業用テナントが検索できるポータルサイト。
当サイトが厳選した不動産会社の正確なテナント情報(貸店舗、貸事務所、貸倉庫)が自慢です。
テナントショップネットワークは足立区のテナント物件の紹介を通じて貴社のビジネスをサポートいたします。