横浜市都筑区 賃貸事務所

フロンティア仲町台 302

資料請求・お問い合わせ
物件No.f11095-155346
賃貸事務所
横浜市都筑区仲町台1-2-20
仲町台駅 ( 徒歩 1分 )
賃料 21.78万円(税込)
(坪単価:0.76万円)
安心の24時間管理受付、駅隣接の好立地、敷地内駐車場あり、機械式の為サイズ要確認
【設備】動力電源,エレベータ,バイク置き場
管理費
共益費
-
27,500円(税込)
保証金
解約引
-
-
敷金
礼金
更新料
-
-
1.5ヶ月
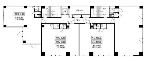
建物/専有
面積
94.31m2
(28.52坪)
土地面積 - 築年月 1995年3月
(平成7年3月)
駐車場 空有
(22,000円)
所在階 3階 地上階数
地下階数
6階
1階
構造 鉄筋コンクリート造(RC)
用途地域 近隣商業地域
現況 居住中
入居/引渡 期日指定 
引渡年月 2025年12月
取引 仲介
物件登録日 2025年11月8日
情報更新日 2025年11月8日
契約時敷金償却あり、短期解約違約金有、残置物多数(エアコン含む)、地内駐車場有・機械式などサイズ要確認
フロンティア仲町台 302 のことならお気軽にご相談ください。
テナントショップ新横浜(㈱おが和本舗)
TEL:090-3225-6989
営業時間:10:00-21:00
定休日 :年末年始・夏季休暇
神奈川県知事(2)第30845号   店舗情報
メールでのお問い合わせ

お電話の場合は
「テナントショップを見ました。物件Noは < f11095-155346 > です」と伝えていただくとスムーズにお応えできます。

テナントショップネットワークは物件情報の適正化に努めております。
物件の掲載内容に誤りがある場合はこちらまでご一報ください。
  • 北海道
  • 青森
  • 岩手
  • 秋田
  • 宮城
  • 山形
  • 福島
  • 東京
  • 神奈川
  • 千葉

  • 埼玉
  • 群馬
  • 栃木
  • 茨城
  • 山梨
  • 長野
  • 新潟
  • 石川
  • 富山
  • 福井
  • 愛知
  • 静岡
  • 岐阜
  • 三重
  • 大阪
  • 兵庫
  • 京都
  • 滋賀
  • 奈良
  • 和歌山
  • 広島
  • 岡山
  • 鳥取
  • 島根
  • 山口
  • 香川
  • 愛媛
  • 徳島
  • 高知
  • 福岡
  • 佐賀
  • 長崎
  • 大分
  • 熊本
  • 宮崎
  • 鹿児島
  • 沖縄

[フロンティア仲町台 302]と価格・用途が近い横浜市都筑区内の物件
貸工場
22.00万円
25坪
テナントショップネットワークはテナント、貸店舗、貸事務所、貸倉庫等、横浜市都筑区の事業用テナントが検索できるポータルサイト。
当サイトが厳選した不動産会社の正確なテナント情報(貸店舗、貸事務所、貸倉庫)が自慢です。
テナントショップネットワークは横浜市都筑区のテナント物件の紹介を通じて貴社のビジネスをサポートいたします。