前橋市 賃貸店舗・事務所

ホテル1-2-3前橋マーキュリー WEST3Fオフィスエリア C

資料請求・お問い合わせ
物件No.f11143-155398-M0400
賃貸店舗・事務所
前橋市大友町
JR両毛線 新前橋駅 ( 徒歩 20分 )
賃料 7.00万円
(坪単価:0.70万円)
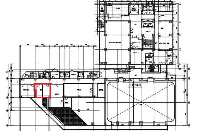
シティホテル内のオフィスフロアの事務所・店舗です。
ホテル内ロビーや共用部で来客との打ち合わせができ、館内コワーキングスペースの利用やランチ営業のレストランも完備。快適な環境でお仕事ができます。

24時間利用可・土日利用可

面積が現況と異なる時は、現況を優先します。
管理費
共益費
-
10,000円
保証金
解約引
-
-
敷金
礼金
更新料
1ヶ月
1ヶ月(税別)
1ヶ月(税別)
建物/専有
面積
33.00m2
(9.98坪)
土地面積 - 築年月 1973年2月
(昭和48年2月)
駐車場 有り無料 所在階 3階 地上階数
地下階数
9階
-
構造 鉄筋コンクリート造(RC)
用途地域 商業地域
現況 空き
入居/引渡 即時 
契約期間 3年
取引 仲介
物件登録日 2025年11月10日
情報更新日 2026年1月16日
賃貸保証:加入要 月額総賃料の100%
火災保険:加入要
水道光熱費・共益費:10,000円(税別)
専用回線使用料:10,000円(税別)
駐車場代:原則無料(台数は相談)
更新料:新賃料1ヶ月

ホテル1-2-3前橋マーキュリー WEST3Fオフィスエリア C 周辺地図

ホテル1-2-3前橋マーキュリー WEST3Fオフィスエリア C のことならお気軽にご相談ください。
テナントショップ前橋(㈱ひとコミ開発)
TEL:027-288-0411
営業時間:10:00-18:00
定休日 :土曜・日曜・祝日
群馬県知事(1)第7897号  店舗情報
メールでのお問い合わせ

お電話の場合は
「テナントショップを見ました。物件Noは < f11143-155398-M0400 > です」と伝えていただくとスムーズにお応えできます。

テナントショップネットワークは物件情報の適正化に努めております。
物件の掲載内容に誤りがある場合はこちらまでご一報ください。
  • 北海道
  • 青森
  • 岩手
  • 秋田
  • 宮城
  • 山形
  • 福島
  • 東京
  • 神奈川
  • 千葉

  • 埼玉
  • 群馬
  • 栃木
  • 茨城
  • 山梨
  • 長野
  • 新潟
  • 石川
  • 富山
  • 福井
  • 愛知
  • 静岡
  • 岐阜
  • 三重
  • 大阪
  • 兵庫
  • 京都
  • 滋賀
  • 奈良
  • 和歌山
  • 広島
  • 岡山
  • 鳥取
  • 島根
  • 山口
  • 香川
  • 愛媛
  • 徳島
  • 高知
  • 福岡
  • 佐賀
  • 長崎
  • 大分
  • 熊本
  • 宮崎
  • 鹿児島
  • 沖縄

[ホテル1-2-3前橋マーキュリー WEST3Fオフィスエリア C]と価格・用途が近い前橋市内の物件
テナントショップネットワークはテナント、貸店舗、貸事務所、貸倉庫等、前橋市の事業用テナントが検索できるポータルサイト。
当サイトが厳選した不動産会社の正確なテナント情報(貸店舗、貸事務所、貸倉庫)が自慢です。
テナントショップネットワークは前橋市のテナント物件の紹介を通じて貴社のビジネスをサポートいたします。