野田市 賃貸店舗・事務所

野田市 賃貸店舗・事務所

資料請求・お問い合わせ
物件No.f11174-159975
賃貸店舗・事務所
野田市堤根
東武野田線 梅郷駅 ( 徒歩 18分 )
賃料 121.00万円(税込)
(坪単価:1.64万円)
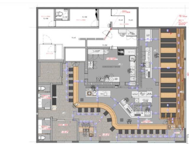
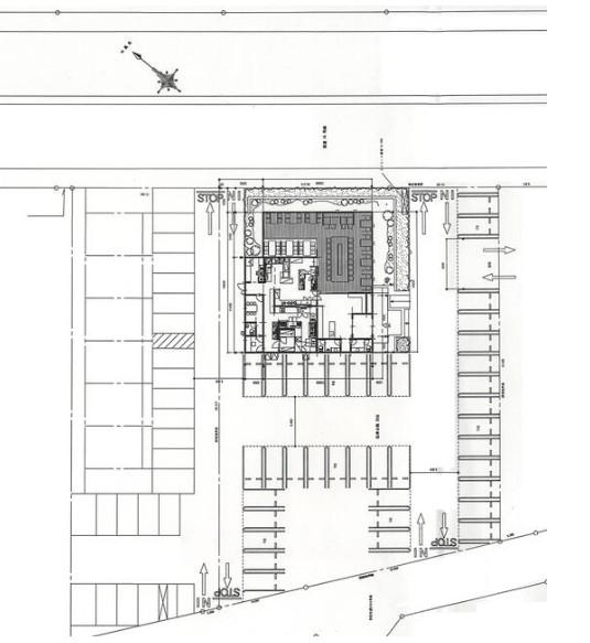
敷地内駐車場38台駐車可能な大型飲食店跡地
千葉、市川エリア・東東京エリアの事業用不動産専門店!「テナントスタイル市川」までお気軽にお問い合わせ下さい。工事や融資、機材手配もワンストップで可能!
管理費
共益費
-
55,000円
保証金
解約引
6ヶ月
-
敷金
礼金
更新料
-
-
1ヶ月
建物/専有
面積
243.48m2
(73.65坪)
土地面積 1553.00m2
(469.78坪)
築年月 2008年3月
(平成20年3月)
駐車場 有り無料/38台 所在階 1階 地上階数
地下階数
1階
-
構造 木造
用途地域 準住居地域
現況 使用中
入居/引渡 期日指定 
引渡年月 2026年08月中旬
契約期間 3年
取引 仲介
物件登録日 2026年2月6日
情報更新日 2026年2月6日
引き渡し状態は相談可能です。
検査済証あり、本下水、キュービクル、プロパン
野田市 賃貸店舗・事務所 のことならお気軽にご相談ください。
テナントスタイル市川
TEL:047-702-9926
営業時間:10:00-18:00
定休日 :水曜
千葉県知事(3)第16199号   店舗情報
メールでのお問い合わせ

お電話の場合は
「テナントショップを見ました。物件Noは < f11174-159975 > です」と伝えていただくとスムーズにお応えできます。

テナントショップネットワークは物件情報の適正化に努めております。
物件の掲載内容に誤りがある場合はこちらまでご一報ください。
  • 北海道
  • 青森
  • 岩手
  • 秋田
  • 宮城
  • 山形
  • 福島
  • 東京
  • 神奈川
  • 千葉

  • 埼玉
  • 群馬
  • 栃木
  • 茨城
  • 山梨
  • 長野
  • 新潟
  • 石川
  • 富山
  • 福井
  • 愛知
  • 静岡
  • 岐阜
  • 三重
  • 大阪
  • 兵庫
  • 京都
  • 滋賀
  • 奈良
  • 和歌山
  • 広島
  • 岡山
  • 鳥取
  • 島根
  • 山口
  • 香川
  • 愛媛
  • 徳島
  • 高知
  • 福岡
  • 佐賀
  • 長崎
  • 大分
  • 熊本
  • 宮崎
  • 鹿児島
  • 沖縄

[野田市 賃貸店舗・事務所]と価格・用途が近い野田市内の物件
貸工場
140.00万円
200.86坪
貸店舗戸建
121.00万円
土地:469.78坪
73.5坪
貸倉庫
125.00万円
土地:193.76坪
228.69坪
テナントショップネットワークはテナント、貸店舗、貸事務所、貸倉庫等、野田市の事業用テナントが検索できるポータルサイト。
当サイトが厳選した不動産会社の正確なテナント情報(貸店舗、貸事務所、貸倉庫)が自慢です。
テナントショップネットワークは野田市のテナント物件の紹介を通じて貴社のビジネスをサポートいたします。