下都賀郡壬生町 賃貸店舗・事務所

リーフアベニューテナント

資料請求・お問い合わせ
物件No.f11058-61546
賃貸店舗・事務所
下都賀郡壬生町安塚895-2
東武線安塚駅 ( 徒歩 11分 )
賃料 19.80万円(税込)
(坪単価:0.85万円)
ロードサイド、視認性の良い1階テナント。室内とてもキレイです。駐車場7台込み。学習塾仕様になっていますが業種応相談。
物件を貸したい、土地を活用したい、店舗売買したい等、不動産に関するご相談や出店希望企業様、不動産所有オーナー様もお気軽にお問い合わせ下さい。
宇都宮市の貸店舗、貸事務所探しは
『ピタットハウス宇都宮下栗店』へ!
管理費 -
-
保証金
解約引
-
-
敷金
礼金
3ヶ月
1ヶ月
建物/専有
面積
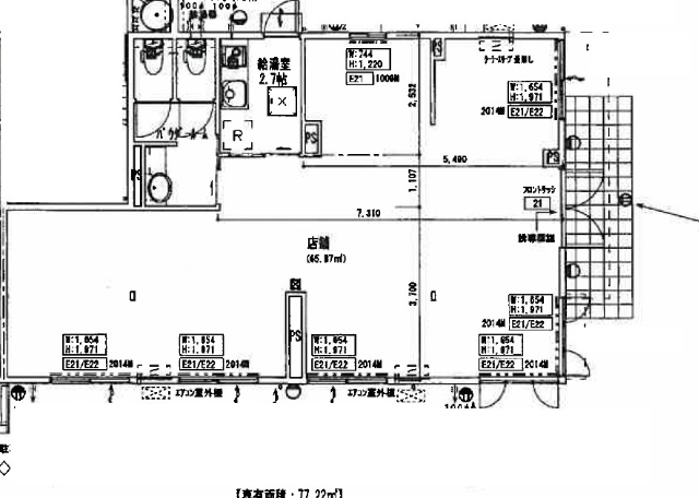
77.22m2
(23.35坪)
土地面積 - 築年月 2016年1月
(平成28年1月)
駐車場 有り無料/7台 所在階 1階 地上階数
地下階数
3階
-
構造 軽量鉄骨造
用途地域 準住居地域
現況 使用中
入居/引渡 相談 
契約期間 3
取引 仲介
物件登録日 2021年5月16日
情報更新日 2025年11月16日
■駐車場7台込み
■事業財産総合保険 保険要加入(指定有)
■保証会社要加入・初回保証料:月額賃料等合計の100% 毎月引落手数料:440円(税込)更新時:10%/1年
■仲介手数料1カ月(税込)借主負担100% 
■契約更新時:更新事務手数料¥55,000円(税込)■現況優先

リーフアベニューテナント 周辺地図

リーフアベニューテナント のことならお気軽にご相談ください。
テナントショップ宇都宮(ピタットハウス宇都宮下栗店)
TEL:028-688-0451
営業時間:10:00-18:00
定休日 :火・水曜日・祝日 4~8月
栃木県知事(13)第1308号  店舗情報
メールでのお問い合わせ

お電話の場合は
「テナントショップを見ました。物件Noは < f11058-61546 > です」と伝えていただくとスムーズにお応えできます。

テナントショップネットワークは物件情報の適正化に努めております。
物件の掲載内容に誤りがある場合はこちらまでご一報ください。
  • 北海道
  • 青森
  • 岩手
  • 秋田
  • 宮城
  • 山形
  • 福島
  • 東京
  • 神奈川
  • 千葉

  • 埼玉
  • 群馬
  • 栃木
  • 茨城
  • 山梨
  • 長野
  • 新潟
  • 石川
  • 富山
  • 福井
  • 愛知
  • 静岡
  • 岐阜
  • 三重
  • 大阪
  • 兵庫
  • 京都
  • 滋賀
  • 奈良
  • 和歌山
  • 広島
  • 岡山
  • 鳥取
  • 島根
  • 山口
  • 香川
  • 愛媛
  • 徳島
  • 高知
  • 福岡
  • 佐賀
  • 長崎
  • 大分
  • 熊本
  • 宮崎
  • 鹿児島
  • 沖縄

テナントショップネットワークはテナント、貸店舗、貸事務所、貸倉庫等、下都賀郡壬生町の事業用テナントが検索できるポータルサイト。
当サイトが厳選した不動産会社の正確なテナント情報(貸店舗、貸事務所、貸倉庫)が自慢です。
テナントショップネットワークは下都賀郡壬生町のテナント物件の紹介を通じて貴社のビジネスをサポートいたします。